
平屋の家は一体感のあるワンフロアのため、洗濯や掃除、収納など生活動線がシンプル。階段を昇り降りする必要がないので、小さなお子さまからシニアまで身体に無理なく、安心して暮らすことができます。
世代を問わず「子どもがどこにいても目が届く、家族を近くに感じられる家を建てたい」「老後を考えて段差が少なく楽に暮らせる家がいい」と平屋の家を選ぶご家族が増えています。


その土地ならではの景観をとり入れた日本庭園や大屋根の堂々とした佇まいは、平屋の家の特徴のひとつ。
耐震性の面でみても、重心が低い平屋は地震に強い構造です。平屋の家は2階がないぶん重量が軽いため地震の揺れによる影響が少なく、建物への被害を抑えることができます。
また構造がシンプルなので、長期メンテナンスの面でのコストパフォーマンスにすぐれています。
ゆとりのある空間で、ほどよい距離感を保ちながら三世代が一緒に暮らす二世帯住宅も増えています。安水建設では、二世帯住宅や平屋の家の特徴、メリット・デメリットなども事前に分かりやすくご案内します。
多くのお客さまから「細かな要望を伝えていなくても的確な提案をしてくれる」「地元だから何かあってもすぐ駆けつけてくれる」「完成後も長く付き合っていける安心感」という声も届いています。

安水建設の住まいに使用されるのは、最高級の建築材として全国に名高い東濃檜。芳しい香りと年を重ねるごとに深みを増す木目の美しさだけでなく、強度や耐水性にも優れる最高級のブランド木材です。
木の扱いに精通した安水建設だからこそ、庇など隠れた部材にも天然の無垢材にこだわり、柱や梁をはじめ木の家の良さを実感する造作など、風土に適した木材を使った家づくりが可能です。


平屋の家は構造上の制約が少なく、軒の深い大開口をはじめ、ウッドデッキや縁側など住まいの内と外がつながる心地よさと一体感、開放感いっぱいの家づくりが可能です。
勾配天井にすれば開放的な吹き抜け高天井の大空間が生まれます。屋内と広い庭をシームレスにテラスでつないで奥行きの深い空間を演出したり、お客さまのご要望に広く応える自由設計で、理想の住まいづくりが楽しめます。
また構造がシンプルなので、長期メンテナンスの面でのコストパフォーマンスにすぐれています。
創業以来、三河の暮らしに寄り添ってきた安水建設だからこそ自信を持って、気候風土に適した家づくり・街並みに映える家づくりで、いつまでも住み心地のよい住まいを提供します。
「ペレットストーブのある吹き抜けのリビング」「使いやすい小上がりのタタミスペース」「生活動線にそったファミリークローゼット」など、暮らしやすく意匠性に優れた和モダンの空間デザインをぜひお確かめください。


木材へのこだわりと同様に、安水建設は家族の安全を守る耐震性に深く取り組んできました。その技術と安全性は『地震体感ハウス』や『Wood Labo』でもお確かめいただけます。
また家づくりは、家族が健やかに暮らせる快適な環境づくりです。家づくりに適した木材を厳選し、通気断熱WB工法を採用。季節を問わず安定した温熱環境・クリーンな空気環境を実現した『呼吸する家』です。
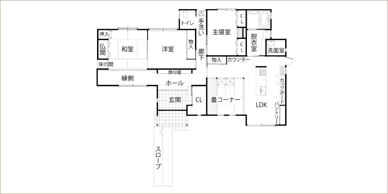
檜をはじめ良質な木材を多用。親戚が集まる家なのでスロープのある広い玄関にし、吹抜けと飾り棚でも木を魅せました。造作収納等も暮らし方や好みに合った提案を頂き、使い勝手が良いです。
木の目利きは流石だと思いましたし、仕事が丁寧。構造もデザインも理想的で居心地がよく、TVを観なくなりました。地元密着の会社でアフターも良い。迅速な対応で建てた後も安心感があります。
見事な日本庭園に導かれる「旅館風を目指した」大屋根の平屋は、日常と法事の対応をバランスよく叶えた住まい。庇にも合板ではなく無垢材を用いるなど隠れた部分への“木へのこだわり”にも感心したそう。 柱や梁を魅せ、木の造作物も満載で「職人さん泣かせだったと思う」とKさんは笑う